Southaucklandrealestate

powered by Open2view.com

45 Ashlynne Avenue

Auckland
2
1
N/A
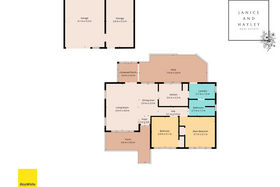
70sqm
N/Asqm
45 Ashlynne Avenue Auckland
Auction
Thursday 27th November - 11:00AM
In Rooms - 66 Great South Road, Papatoetoe
proudly marketed by
Janice Matthews
Hayley McAlister
Noble Realty Ltd Licensed Real Estate Agent (REAA 2008)
ARE YOU A DIY DAREDEVIL OR RENO ROCKSTAR?
Owned and loved for almost 20 years, it's now in the hands of Public Trust NZ, ready to hand over the keys to someone with a vision. Grab ya tool belt, ya hard hat attitude, it's time to buckle up and come and check this beauty out. This freestanding 70sqm weatherboard home sits on a cross-lease 1/2 share of 862sqm title. In need of a full renovation, inside and out, it offers plenty of potential to add value. With a separate garage and a practical layout, this property is ideal for those ready to roll up their sleeves and create something special. Set in an established area, offering convenience to your local schools, shops, transport and local parks. THIS HOME WILL BE SOLD - Ignore CV and all online price indications - Just come and check her out! Slide into our DMs or give us call for more info! It's time to turn this fixer-upper into a showstopper! #YourNextMoVeStartsHere! An opportunity too good to miss - make it yours today! Disclaimer - This property is being sold by auction or without a price and therefore a price guide can not be provided. The website may have filtered the property into a price bracket for website functionality purposes. All prospective purchasers shall complete their own due diligence, seek legal and expert advice, and satisfy themselves with respect to information supplied during the marketing of this property, including but not limited to: the floor and land sizes, boundary lines, underground services, along with any scheme plans or consents.
Question
Location
Upload by Robyn Brown
South and East Auckland